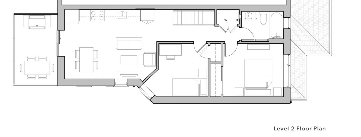
Eco Flats #2 is the second in our series of super-efficient, all-electric rental developments in Toronto; and is one of our most efficient and air-tight projects. From its beginnings as an untouched, single-family home, it now has three two-bedroom units, each with its own private entrance. The building has immediate access to two TTC streetcar lines, a bus line, and is walking distance from a subway station and commuter rail stop.
Our Eco Flats projects are all-electric because we believe in moving away from fossil fuels. Our buildings are so well insulated and airtight that the heating and cooling loads are significantly smaller than in most buildings. Our approach is that a higher upfront cost for much less consumption is worth it in the present, and cost effective over the long term.
We show our commitment to this all-electric approach by covering the utility costs for the building and giving each unit its own heating and cooling controls. To learn more about the electricity costs, read the Systems post in the Eco Flats #2 Case Study.

























































