Pearson Renovation began as a basement project that gradually expanded as the homeowners addressed long-standing issues with circulation and flow. They had considered moving to find a larger home with parking and more space for entertaining, but they never found an alternative that felt right. Instead, they chose to stay, committing long-term to the home and neighbourhood they already loved.
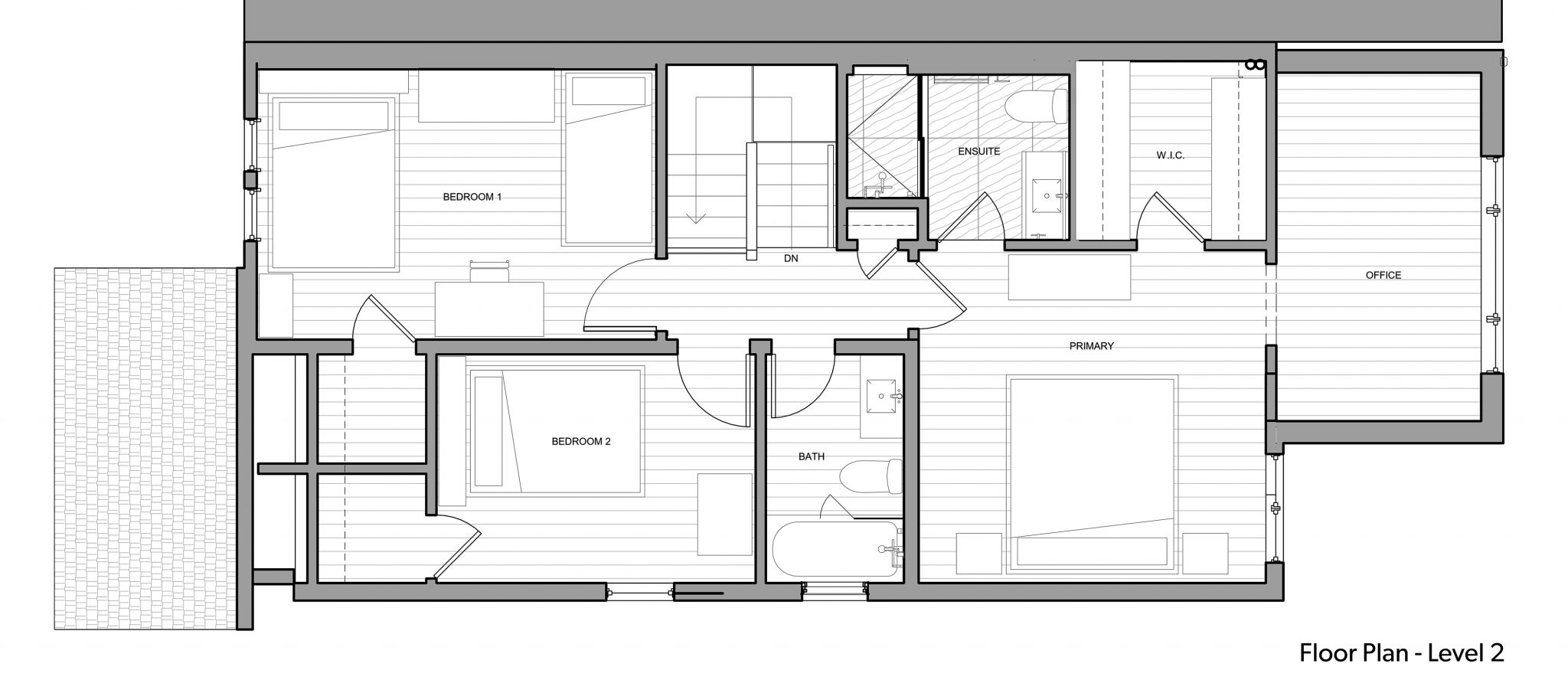
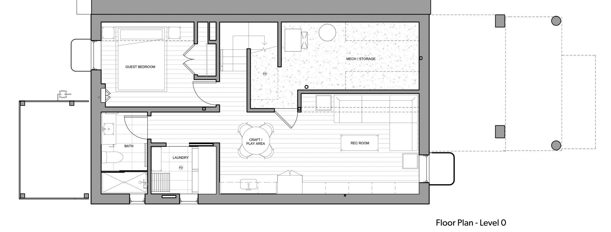
The result was a major “partial” renovation of this family home. By starting with the basement and realigning the lower- and upper-level stairs, we eliminated the need to pass through what was a small kitchen tucked away in the middle of the house. This seemingly simple change prompted a broader rethinking of both the main floor and upper level as well.
The process, at times meandering and spontaneous, was guided by a growing clarity about how the family wanted to live. Ultimately, every space except the children’s bedrooms was renovated top-to-bottom.
The finished home, designed around hosting and daily life, is elevated by the client’s exceptional taste. Acting as interior designer, our client created a refined palette of finishes, materials, and fixtures that feels both current and timeless.







































