Inverary House is home to a lively family of five who dreamed of a modern, nature-immersed retreat just outside Kingston—close enough for an easy twenty-minute commute, yet far enough to escape the pace of city life. Their property sits in a young subdivision along the edge of a forested ravine with a wetland and lake, offering community at the front and serene nature at the back.
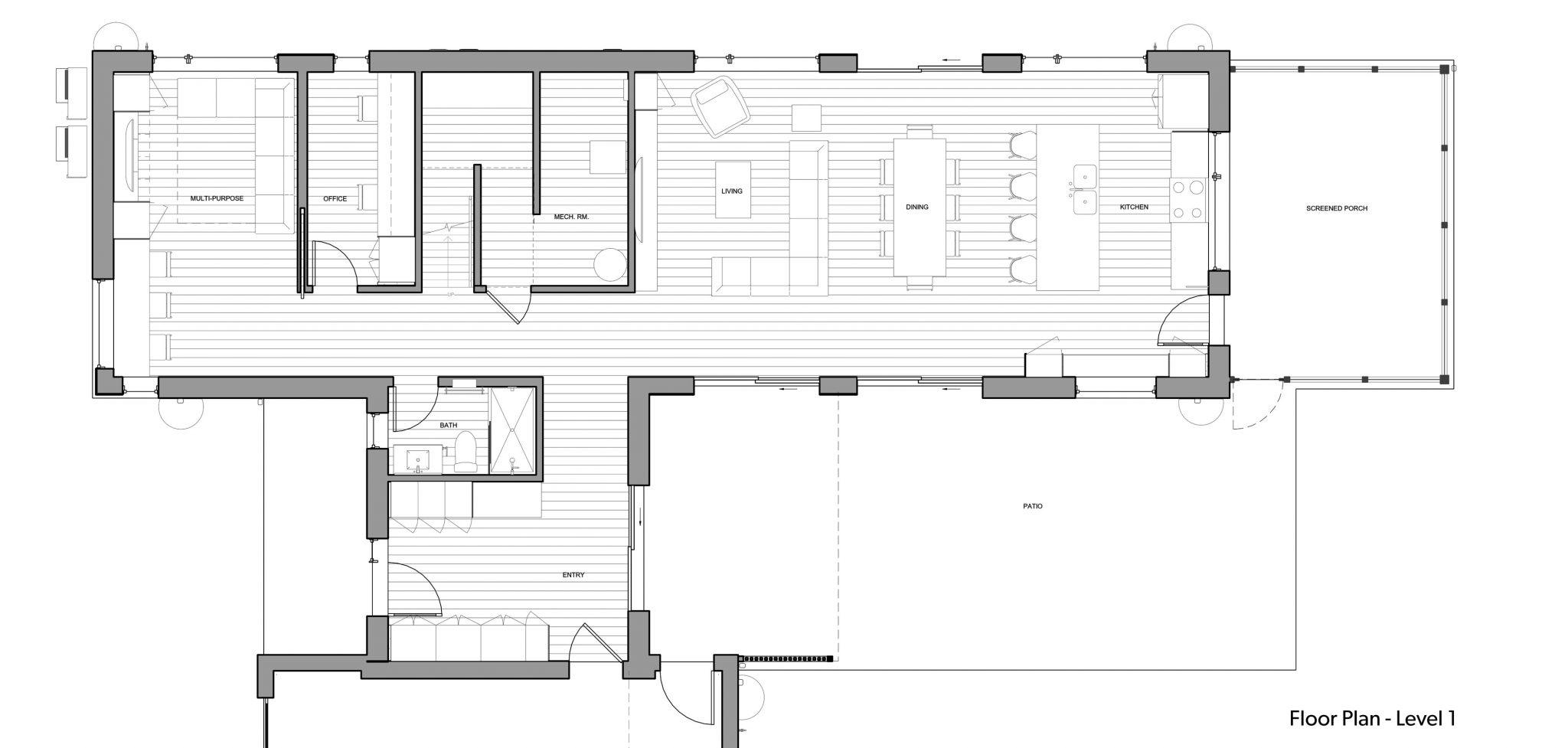
Rather than a conventional suburban home, the family wanted a contemporary design closely connected to the landscape. The gently sloping site invited a long, narrow layout that hugs the ridge, giving every room a direct relationship to the treetops and changing seasons.
In this neighbourhood, front and side yards serve as shared play areas for children, and Inverary House follows suit. Pushing the home close to the forest edge preserves generous, open lawn space at the front and side for kids and neighbours, while the ravine-facing terrace at the back provides the family with a quiet and private outdoor retreat.











































