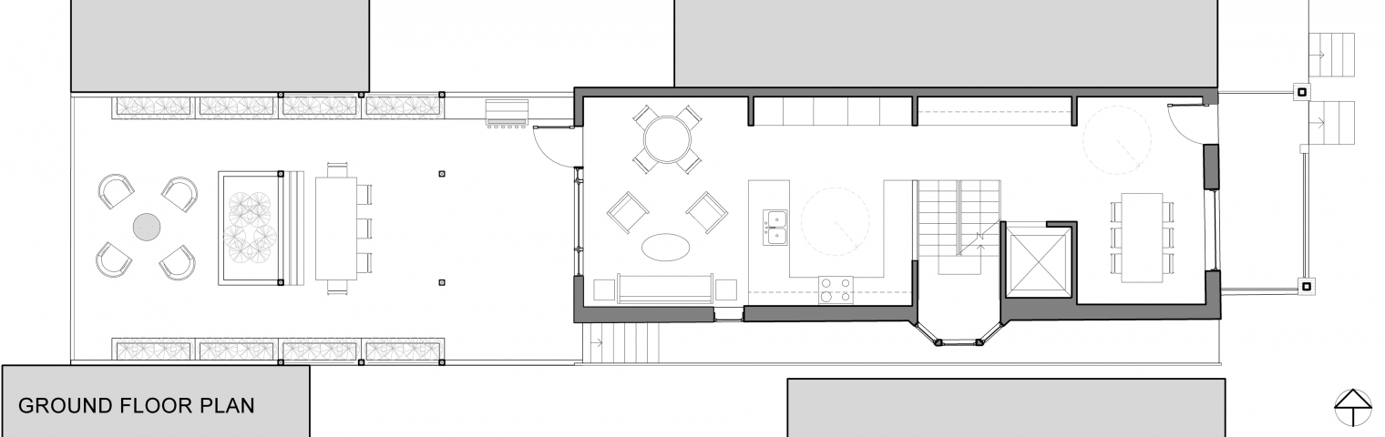
The renovation of this solid brick house in Toronto’s Roncesvalles Village was predicated on making the house fully accessible for its residents. The scope of work involved an entirely new attached garage with a roof deck above, a residential elevator, and a full interior retrofit to open up spaces and improve performance, accessibility, and comfort. Great attention was given to every detail to ensure the house is both fully accessible and a restful and enjoyable place to be.
The home owners, a couple in their 50s with two teenaged children, came to Solares in 2013 to turn their house of 20 years into a fully accessible home. The father and husband of the household had been diagnosed with multiple sclerosis in 2006, and was soon in need of a mobility device. On hearing the news, the family began looking into purchasing an accessible home, but soon found out that accessible homes on the market are scarce and hugely expensive, as typically these homes are built as needed. Even a bungalow would have required extensive renovation work to become truly accessible, so the family decided instead to renovate their existing home. Though the home would need extensive renovations, it was still the most affordable and logical choice for the family.






































