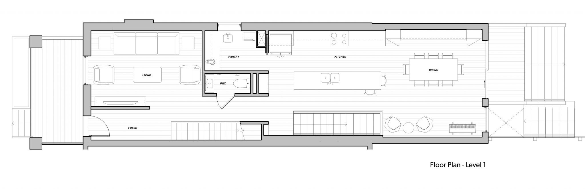
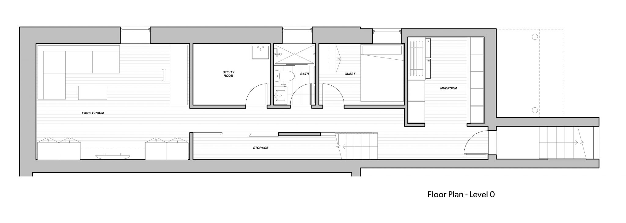
This renovation was especially close to home: a project for friends in the neighbourhood. After adding a third floor a few years earlier, they were ready to transform the ground floor and basement for their busy family of five, while leaving the second floor untouched.
Life for this family revolves around the back of the house, yet the entry was cramped, the backyard felt cut off, and the interiors lacked light and space. Our design reimagined how the home is entered and used, creating a welcoming and functional entry, a bright main floor, and a versatile basement that supports daily life.













































