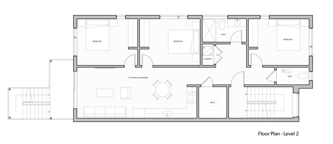
Major St. Multiplex is a four-unit walk-up in Toronto’s Annex neighbourhood. The building design offers ample space, light, and privacy for tenants, with each apartment occupying its own dedicated floor of the building. All units are 3-bedroom suites with 1.5 bathrooms, in-suite laundry, and rear balconies.
The property is located close to multiple public transit routes including subway, streetcar, and bus lines, and was previously an empty lot used for parking. At the rear is a proposed garage conversion that will add a detached, 3-bedroom laneway house on the property. With the fourplex at the front and future laneway house in the back, this full development will add five 3-bedroom units to this previously empty prime-location property.






















