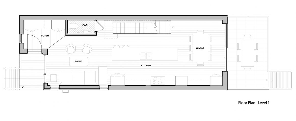
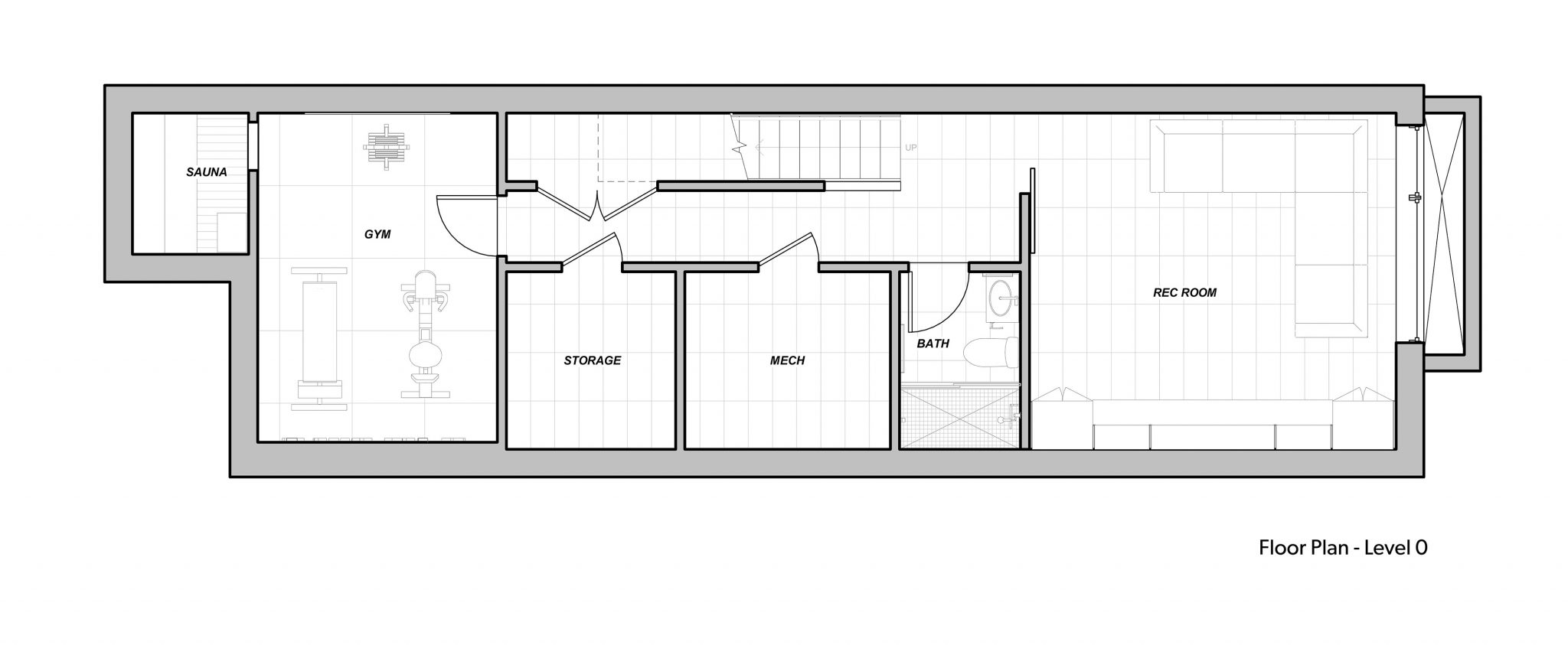
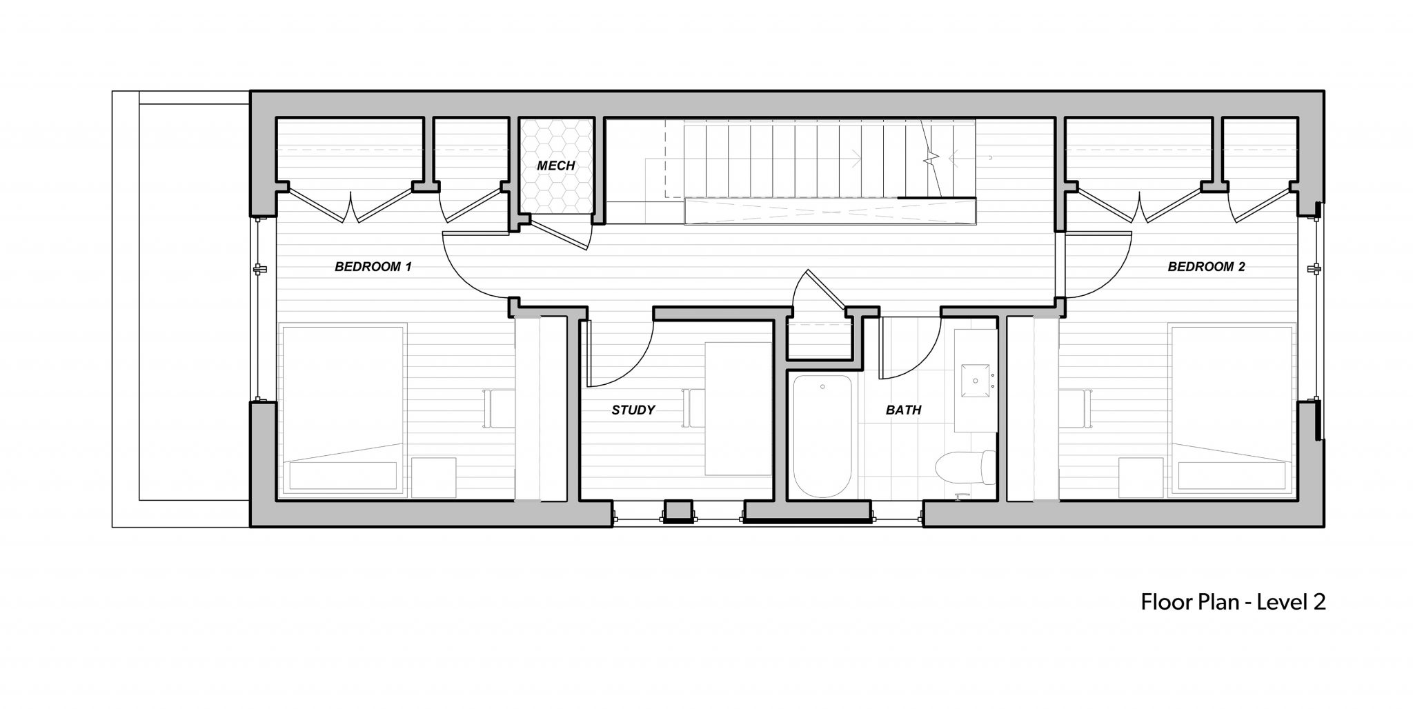
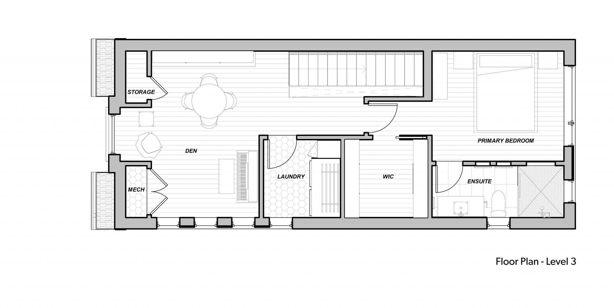
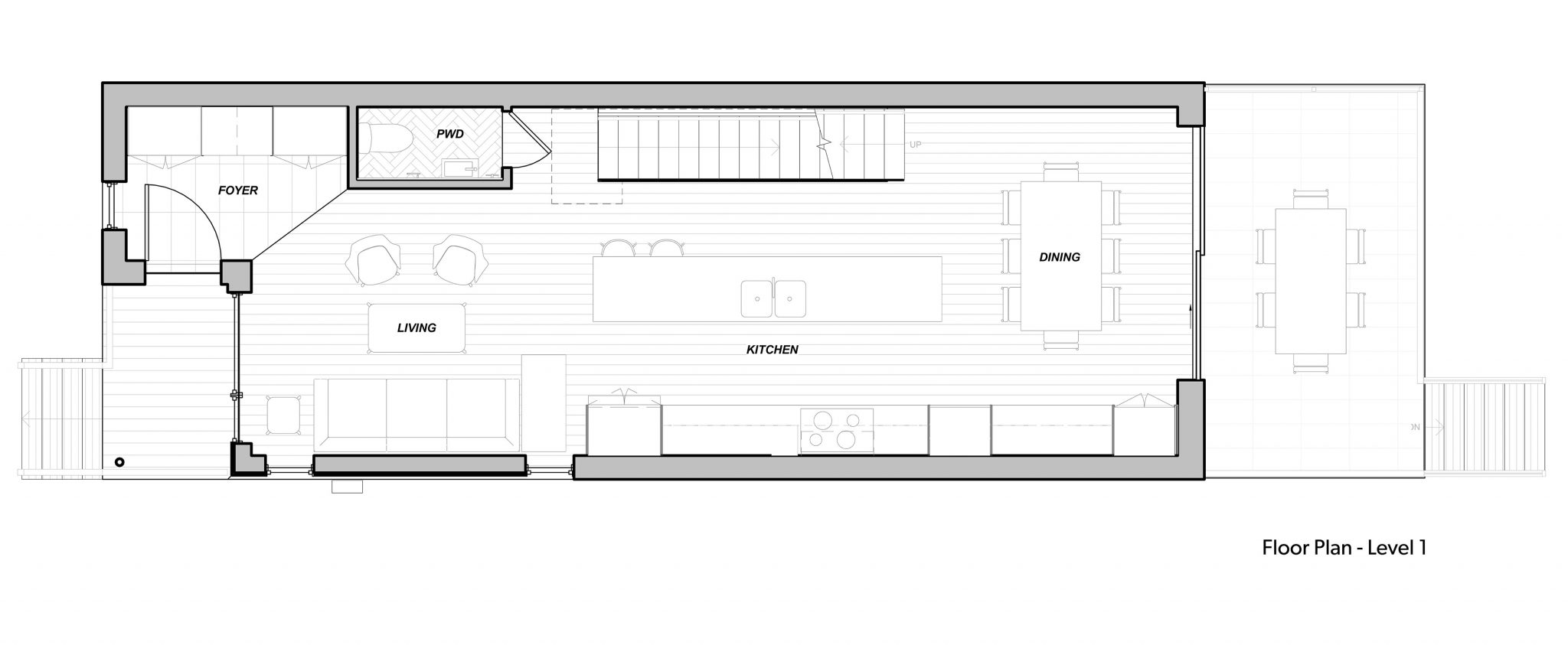
East York House is a new family home in Toronto’s east end. The project replaces a cherished house where our clients had lived for many years, but which was not a candidate for renovation due to a multitude of necessary repairs and crumbling foundations. When it came to rebuilding, they sought a design that reflected their values and lifestyle: a home that is thoughtfully designed, exceptionally built, and suited to the rhythms of everyday family life.
Neighbourhood context and neighbourliness was paramount to our clients. The front of the house echoes the familiar lines and shapes of the surrounding homes. At the back, our clients wanted to align the rear wall of the new house with the neighbouring homes, even though they were allowed to build deeper. It was important to them to preserve a cohesive backyard “streetscape”.
On the exteriors, a soft grey palette marries modernity with traditional forms, reinterpreting local vernacular elements such as horizontal siding, dormers, steeply pitched roofs, and shingles, further blending into the aesthetics of the street.

























































