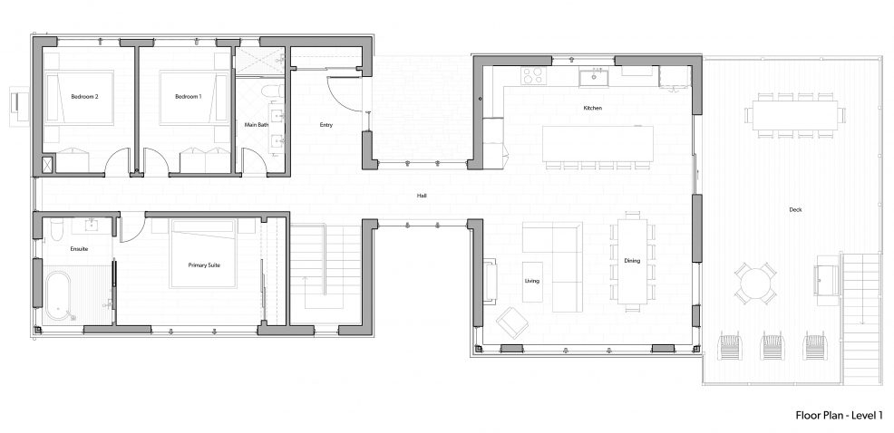
Christel Cottage is a modern, all-electric retreat in Ontario’s South Frontenac region. It was designed for a Montreal family as a year-round vacation property with expansive gathering spaces, private bedroom wings, and a strong connection to the outdoors. The result is a home that balances comfort, durability, and performance with the welcoming spirit of a classic lake house.
Surrounded by mixed forest, the site is both private and expansive, with long western views across one of the region’s largest lakes. Approached from a private road, the property offers a sense of seclusion and discovery. From the moment you step onto the property, the view opens directly through a glass bridge to the lake beyond, hinting at the home’s strong connection to its natural surroundings.











































