This rural new-build sits on a large picturesque property previously home to a 1970s Viceroy cabin, which was sorely in need of replacement. The 49-acre lot the house sits on, however, is a different story. Mature mixed forest stands to the north and west, and a long cedar-lined driveway leads off the property to the east. A tributary of the Credit River flows along the property’s south side, crowned by an idyllic footbridge.
Our clients are fans of architect Frank Lloyd Wright’s warm and stately works, and were inspired by his organic and Usonian architecture of the 1920s and 30s. The home’s aesthetic is clean, warm, and tranquil, and materials were carefully chosen to reflect the palette of the surrounding landscape. The couple’s furniture collection is extensive – largely wooden Mission pieces with intricate detailing – and is showcased in the home.
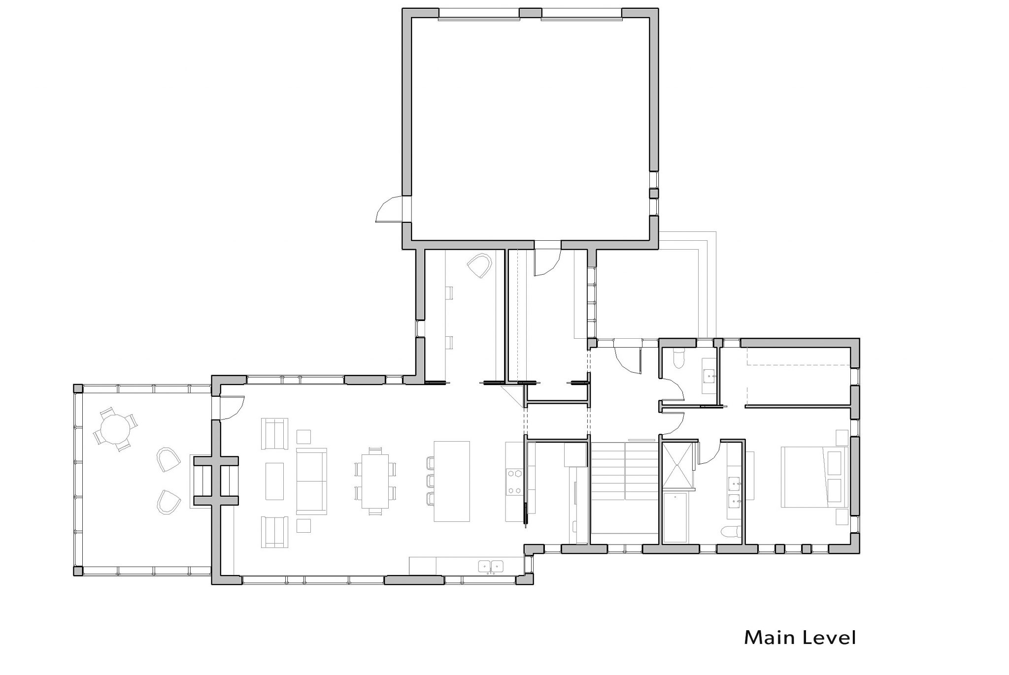
The new building is organic with compressed spaces leading to expanded ones, and an integrated relationship with the surrounding landscape. Each floor is 2,000 sq.ft. with a generous walk-out from the finished lower level. Every room has a gorgeous view of the forest and river.














































